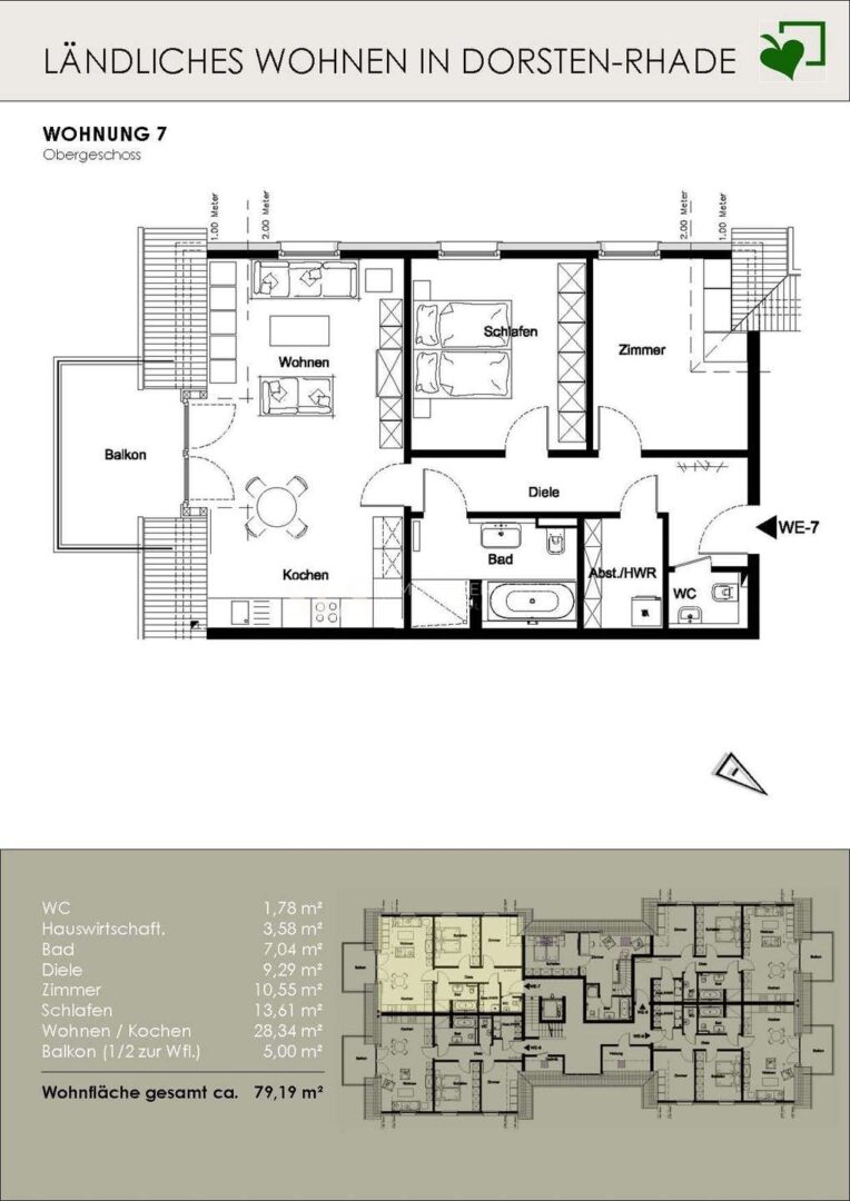
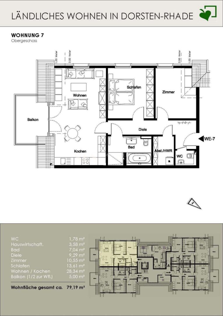
Diese Wohnung in der ersten Etage bietet einen besonderen Blick und viel Licht. Der große Balkon öffnet sich zur Sonnenseite und gibt den Blick weit über die angrenzenden Felder frei. Kein Gebäude versperrt die Aussicht, sodass die Wohnung den ganzen Tag über hell und freundlich wirkt.
Die rund 79 m² Wohnfläche sind gut durchdacht und bieten 3,5 Zimmer mit einer gelungenen Balance aus Offenheit und Rückzugsbereichen. Der Wohn-, Ess- und Küchenbereich ist großzügig geschnitten und bildet das Herzstück der Wohnung. Große Fenster lassen viel Tageslicht herein und verstärken die helle, freundliche Atmosphäre. Zwei weitere Zimmer bieten flexible Nutzungsmöglichkeiten, etwa als Schlafzimmer, Kinderzimmer, Arbeits- oder Gästezimmer.
Das Badezimmer ist hochwertig ausgestattet und verfügt über eine bodengleiche Dusche und eine Badewanne. Ein separates Gäste-WC ergänzt den Komfort. Ein Hauswirtschaftsraum mit Waschmaschinenanschluss sorgt für zusätzlichen Stauraum und Ordnung.
Die Ausstattung kombiniert Wohnlichkeit mit hochwertigen Materialien. Hochglanzpoliertes Feinsteinzeug und Laminatböden, Fußbodenheizung in allen Räumen, große Fenster mit Schallschutzverglasung und elektrische Rollläden schaffen ein modernes Wohngefühl. Dank des Aufzugs ist die Wohnung barrierearm erreichbar und damit auch für Menschen attraktiv, die Wert auf komfortables Wohnen legen.
Zur Wohnung gehört ein eigener Stellplatz. Das Gebäude wurde 2016 als KfW-Effizienzhaus 70 errichtet und ist mit moderner Gas-Brennwerttechnik sowie Solarthermie zur Warmwasserbereitung ausgestattet.
Die Wohnung ist sofort bezugsfrei und verbindet naturnahes Wohnen mit einem offenen Grundriss, viel Licht und einer ruhigen Lage. Ein Zuhause mit Wohlfühlfaktor und unverbaubarem Blick ins Grüne.
































