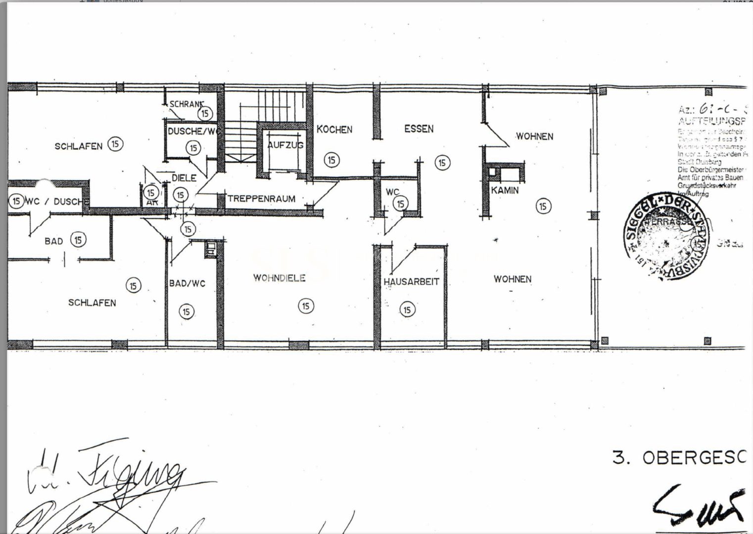
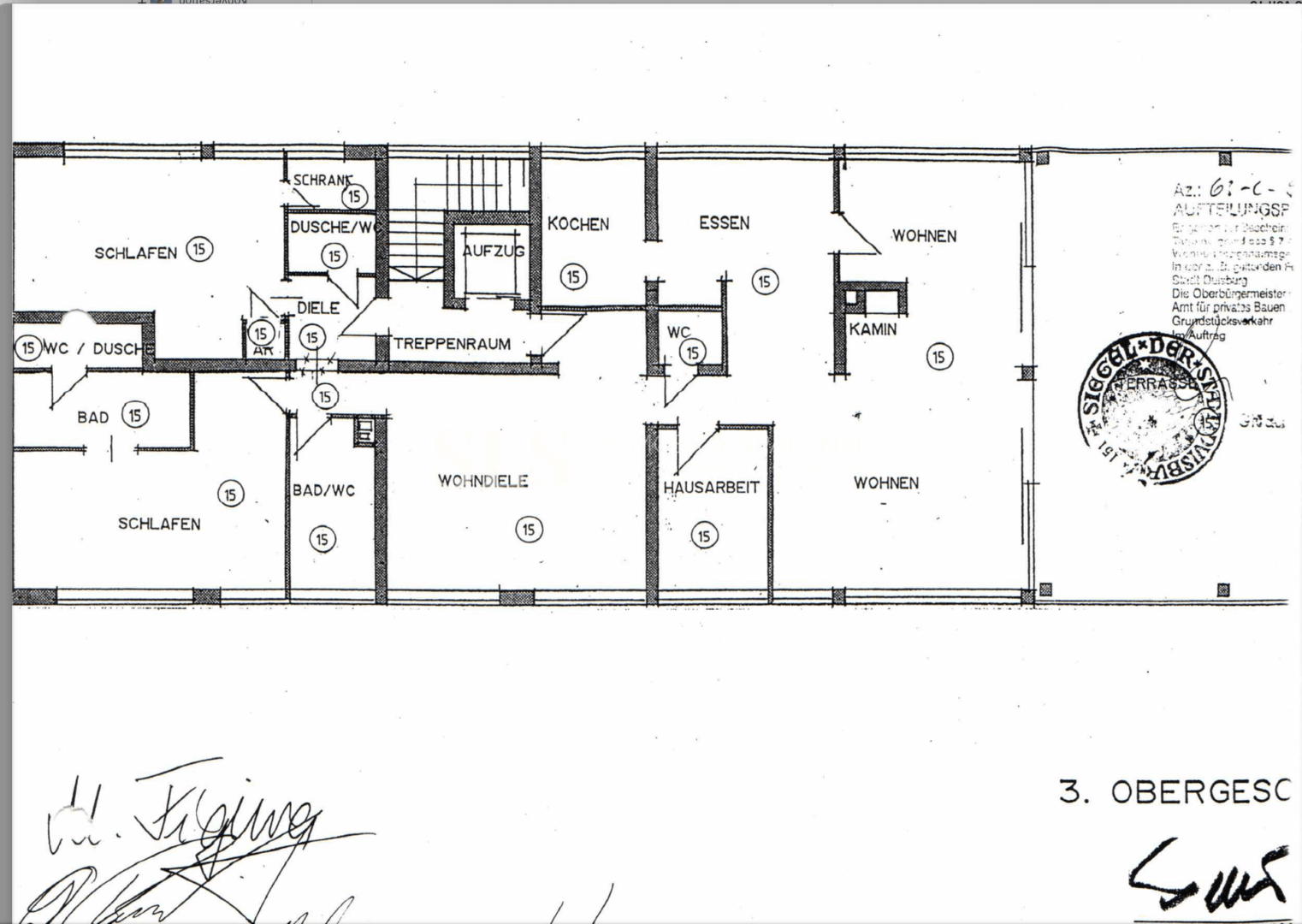
Über den Dächern von Duisburg entfaltet dieses außergewöhnliche Penthouse seinen eigenen Charakter – großzügig, stilvoll und mit einem klaren Sinn für Qualität. Auf rund 175 Quadratmetern vereinen sich moderne Technik, offene Architektur und wohnliche Eleganz zu einem Lebensraum, der gleichermaßen Rückzugsort und Bühne ist.
Das Zentrum des Lebens bildet die rund 150 Quadratmeter große Dachterrasse – ein privates Refugium mit überdachtem Whirlpool, das zum Entspannen, Feiern und Genießen einlädt. Hier verschmelzen Innen- und Außenraum zu einer Oase über den Dächern der Stadt. Im Inneren schaffen großzügige Wohnflächen, ein Kamin und die Klimaanlage mit Heizfunktion zu jeder Jahreszeit ein angenehmes Raumgefühl.
Das Gebäude aus dem Jahr 1960 wurde technisch umfassend erneuert: neue Fenster, ein saniertes Flachdach, moderne Fernwärme und vollständig überarbeitete Haustechnik sorgen für zeitgemäßen Komfort und Energieeffizienz. Besonders hervorzuheben ist das exklusive Sondernutzungsrecht am eigenen Schwimmbad- und Saunabereich im Untergeschoss – ein privater Wellnessbereich, der diesem Penthouse eine einzigartige Note verleiht.
Der derzeitige Grundriß kann leicht in den ursprünglichen großzügigen Zustand zurück gebaut werden.
Zur Wohnung gehören zudem eine Doppelgarage mit Durchfahrt zum Innenhof und vier Carports – ein praktisches wie seltenes Detail, das den hohen Anspruch dieses Objekts unterstreicht.
Ein Zuhause für Paare, Familien, Berufstätige und Unternehmer, die Wert auf Raum, Ruhe und Repräsentation legen.
Ein Zuhause, das Sie unbedingt entdecken sollten.



























