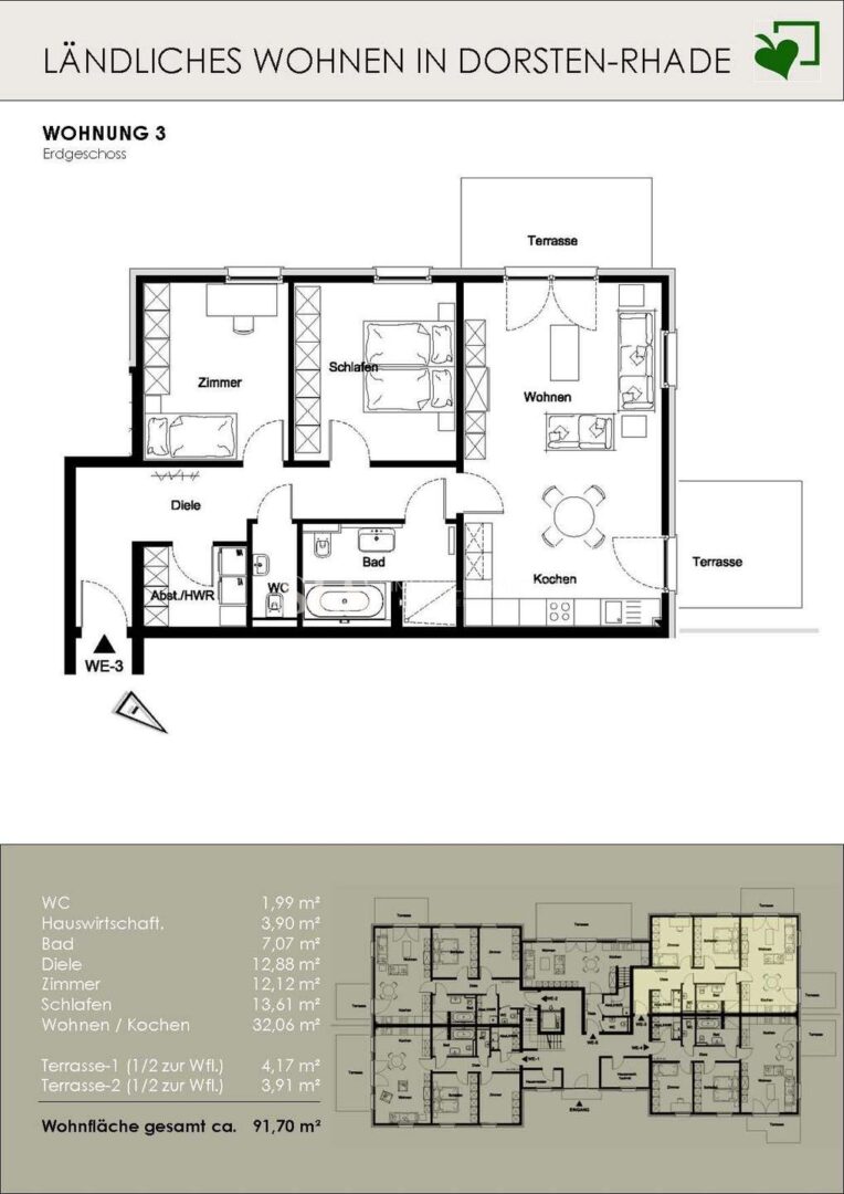
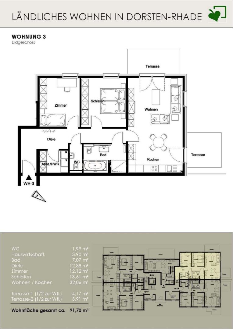
Diese barrierearme Erdgeschosswohnung bietet eine besondere Mischung aus Komfort, Privatsphäre und einem angenehmen Wohngefühl. Zwei Terrassen und ein kleiner eigener Garten erweitern den Wohnraum und schaffen einen Ort, an dem man den Alltag mühelos ins Freie verlagern kann. Hier lässt sich das Leben drinnen wie draußen gleichermaßen genießen.
Die rund 91,7 m² Wohnfläche sind harmonisch aufgeteilt. Der großzügige Wohn- und Essbereich mit offener Küche ist der Mittelpunkt der Wohnung und überzeugt mit einer freundlichen Atmosphäre. Große Fensterflächen lassen Licht herein und schaffen eine helle und wohnliche Stimmung. Zwei Schlafzimmer bieten ausreichend Platz für unterschiedliche Lebenssituationen und eröffnen flexible Möglichkeiten zur Nutzung.
Das Badezimmer ist modern gestaltet und verfügt sowohl über eine bodengleiche Dusche als auch über eine Badewanne. Ergänzt wird der Komfort durch ein separates Gäste-WC und einen praktischen Abstellraum innerhalb der Wohnung, der als Kellerersatz dient und Platz für Waschmaschine, Trockner und Vorräte bietet.
Die Ausstattung verbindet Wohnlichkeit mit moderner Technik. Fußbodenheizung in allen Räumen sorgt für ein angenehmes Klima, während Fliesen- und Laminatböden eine pflegeleichte Basis schaffen. Elektrische Rollläden und große Fenster mit Schallschutzverglasung runden den Standard ab. Durch die barrierearme Bauweise und den ebenerdigen Zugang eignet sich die Wohnung besonders für Menschen, die Wert auf langfristige Wohnqualität legen.
Zur Wohnung gehört ein eigener Stellplatz. Das Gebäude wurde 2016 als KfW-Effizienzhaus 70 errichtet und ist mit moderner Gas-Brennwerttechnik sowie Solarthermie zur Warmwasserbereitung ausgestattet.
Die Wohnung ist sofort bezugsfrei und verbindet eine ruhige Wohnlage mit durchdachter Architektur und einer zeitgemäßen Ausstattung. Ein Zuhause, das viel Raum für individuelle Vorstellungen und entspannte Wohnqualität bietet.






























